Studio IX (Focus Studio)
Studio IX is a unique studio whose focus varies by section in the fifth and final year of the undergraduate program. In this studio, White decided to concentrate on studying innovation and how to construct a complex that serves a community while integrating innovation. Initially, White began the semester with the task of developing a design inspired by nature. He created a building modeled after the natural stacking of rocks. Following this nature-inspired design, White assembled a team from his entire class. Together, they embarked on a project on River Street in Savannah, Georgia, to develop an innovative complex in the area.
The rehabilitation of the port in Savannah, formerly dedicated to industrial production related to the sea, into a public community center for the city as a "Living Laboratory," provides an unparalleled opportunity for startups and established companies to explore, test, and validate their innovations in a real-world environment. With the convergence of intelligent mobility, smart city technology, and advanced infrastructure, this facility paves the way for a future where innovation knows no bounds. Our Innovation Center: Digital District will feature 5-6 performance buildings, including a community center, auditorium, workshops, offices, classrooms, event space, and meeting rooms for innovation and collaboration. Integrating seamlessly with the urban landscape, our Digital District infrastructure caters to the evolving needs of its inhabitants. By harnessing the power of 5G connectivity, it enables real-time communication and coordination between vehicles, pedestrians, and various public services. This collaborative ecosystem ensures enhanced situational awareness, mitigating risks and enabling efficient decision-making for a smooth and secure commuting experience.
Ultimately, White and his studio team developed a complex named The Digital District. This complex comprises a community center, auditorium, amphitheater, office workshop, and a residential building. It also features innovative elements like autonomous vehicles, underground distribution systems, and drones throughout the site. White and his team integrated the project into the existing area and constructed a 1’=3/16” scale model of the proposed complex design.
The team consisted of Alex Rodriguez, Austin White, Brandon Bernard, Diana Salamaga, Edwin Osmin, Eli Abamonte, Jackson Crow, Kota Gray, Lizzy Johnson, Mark Pinkney Jr., Moises Marquez, Nia McGann, Nicole James, Noah Gaskin, Taharka Muhammad, and Tyler Quick.
Fall 2023
White and his team ultimately developed a large site model and conducted post-production work for their final proposal: The Digital District. In the end, White was interviewed and featured on 11 Alive Atlanta News for his innovative urban Focus Studio.
DIGITAL DISTRICT-Featured on 11 Alive News




The Digital District Focus Studio is a pioneering undergraduate research initiative. Building on a foundation of expertise in systems, materials, and building performance, this studio is committed to developing an urban campus in Savannah, Georgia. Our vision involves transforming a lot in Savannah into a vibrant 'Digital District,' featuring essential components like an Auditorium, Amphitheater, Offices with Research and Development Workshops, Residential Living, and a Community Center. In partnership with Curiosity Lab, the Digital District is integrating advanced smart systems, including infrastructure, circulation, building performance, drone research, and autonomous logistics, all interconnected through 5G wireless communication. Our studio's objectives are underpinned by a comprehensive understanding of environmental technologies, integrated systems, urban design, and high-performance buildings, aiming to effectively incorporate these smart systems throughout the entire site. Additionally, the studio prioritizes community engagement, honoring Savannah's history as America's first planned city. While the Digital District acknowledges the charm of Oglethorpe's design, characterized by streets interlaced with inviting public squares and parks, our goal is to contemporarily reinterpret these foundational concepts. We strive to weave this historical legacy into the district's fabric, transforming the waterfront site into a contemporary representation of the Savannah experience.
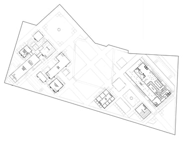
DIGITAL DISTRICT




























Developing the site for the Digital District posed a unique challenge. White and his Focus Studio team approached this task by proposing development within the undeveloped areas of the site. While there is already a master plan in place through Patrick Malloy Communities and other developers, the introduction of the Digital District is intended to disrupt these future plans by adding an innovative component to Savannah, Georgia.
DIGITAL DISTRICT-Site Plan


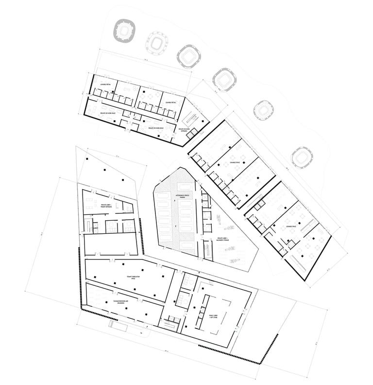
The Community Center at the Digital District offers a dynamic environment with a variety of engaging spaces. The center's aim is to provide an indoor and outdoor experience that encourages visitors to stay and explore. Across twelve different buildings, guests can find interactive spaces focused on innovation and well-being. The innovation aspect of the Community Center includes programs related to robotics, drones, VR/AR, electronics, video games, and design knick-knacks. In contrast, the well-being section emphasizes activities like integrating plants, running, biking, yoga, art, books, and coffee. Each interactive space features a retail shop where visitors can purchase innovative or well-being products or services, and also learn more about them. Additionally, the Community Center boasts a large food hall and winery, which serve as central gathering spots in the Digital District, uniting the community through food, drinks, and social spaces.
Community Center


Plant Store










































West Elevation
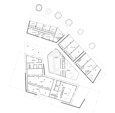
First Floor Plan
Second Floor Plan
East Section
East Elevation
West Section
Massing Evolution
Program
Savannah Square
Pedestrian Circulation
Vehicle Circulation
The auditorium is a marvel of modern engineering, featuring a sleek facade that reflects the district's dedication to a digital future. Upon entering, visitors are welcomed into an immersive environment that effortlessly blends aesthetics with functionality. Its sleek lines, cutting-edge lighting, and minimalist design transcend the conventional expectations of an auditorium. This High-Tech Auditorium is outfitted with state-of-the-art audio-visual technology, ensuring an engaging experience for all attendees. It boasts ultra-high-definition projection systems and immersive surround sound, with every detail finely tuned to enhance presentations, performances, and events. The integration of augmented reality and virtual reality technologies opens up new, dynamic, and interactive possibilities for both speakers and audiences, further distinguishing this space as a forefront of technological advancement.
Auditorium






























Massing Evolution








Circulation
Drone Landing
Exploded
Exploded Program
Gallery Space
Southeast Elevation
Northeast Elevation
The amphitheater at the Digital District offers a distinctive gathering space for the community to enjoy live performances while overlooking the riverfront. It is designed with pedestrian accessibility and circulation as a priority, extending the existing riverwalk onto the site and around the amphitheater to facilitate a welcoming approach from all directions. The solar tree concept was developed to provide climate control and manage water entering the site, whether from rain or storm surges. Focusing on scenic viewpoints, urban engagement, placemaking, and climate considerations, this program positions the Digital District as a pivotal and defining feature at the end of the Savannah Riverwalk. Additionally, as the Amphitheater develops the common space for the community the application of this area extends into of common areas connecting the all the programs of the Digital District together.
Amphitheater


Sustainable Integration


















East Section
The Office-Workshop at the Digital District, positioned as the most secluded and enclosed part of the site, functioned as the center for work, research, and technology development. It catered to four distinct types of companies, in line with the specific needs of Curiosity Labs as a facilitator. These companies specialized in areas such as agricultural drones for crop harvesting, autonomous vehicle systems, hydroponic farming, and waste recycling of plant matter. Each company was provided with designated spaces for fabrication, offices, hydroponic labs, and a raised courtyard that served as a testing zone for their specialized fields. The fabrication area, a monolithic structure, featured expansive floors to accommodate a wide range of specialized electronics and mechanics, essential for production and testing. The lower section housed a spacious mechanical bay for the development, testing, and repair of autonomous vehicles. The office spaces were ingeniously designed with a two-tiered approach: the lower level offered coworking spaces for temporary, short-term collaborations, while the upper levels provided long-term leasable spaces for companies. A significant portion of the upper level was dedicated to a generously sized social space, offering panoramic views of the amphitheater.
Office Workshop


Level 1 Plan






Level 4 Plan












North Elevation
North Section
West Section
Circulation Areas
Office Workshop Highlights
Green Space
Water Flow
The Residential Building in the Digital District is a prominent feature on the site, offering a blend of public and private programs on its lower floors for both visitors and residents. The public program encompasses sociable spaces such as restaurants and cafes, designed to attract pedestrians from the existing residential areas outside the site. In contrast, the private program includes amenities specifically for the building's residents, such as a gym, lounges, and leasing office space.
Residential


Green Space
























Highlights
Program
Circulation
Level 1, 2, & 4 Plans
Beauty can be found ubiquitously, but the most captivating form of beauty is found in our natural environments. As architects, we are often inspired by nature’s biological principles, which we then express through the beauty of architecture. "Nature Artistic Balance" is a conceptually bio-inspired building located in the heart of Savannah, Georgia. This building draws inspiration from nature’s most common element: a rock. The distinctive feature of this design is its interpretation of rock balancing, a practice sometimes seen in national parks where visitors stack rocks from a river. "Nature Artistic Balance" mimics this practice. In its design process, the initial stages involved stacking rocks, followed by modifications to meet Savannah’s requirements for an innovative Living Laboratory.
Nature's Artistic Balance


By Austin White
















