Studio VI
Studio VI explores the architectural potential of this paradigm shift and incorporates sustainable design strategies in the project outcome. This studio addresses the more subjective issues of formal expression and materiality, and how these intersect intuitively with more rational design strategies. The objective for each student is to generate a pragmatic yet poetic architectural design process that further develops architectural position and perspective.
Studio VI began with exploring rhythm in architecture. Thinking out what rhythm is, White delved into how he perceived rhythm in precedents around the world. From this research, he and his classmates were tasked with designing a representation of rhythm within certain boundaries. This individual design later transitioned into a collaborative process that unified the entire studio's designs. Following this, White visited the site for the semester-long project and envisioned integrating his rhythm design in a vertical fashion. This sparked a new task to create a simple temple structure that would ignite the studio project.
After designing the simple temple, White adapted his design to meet the requirements of creating an office building with a mixed-use program suitable for the area. Ultimately, White developed an eight-story office building centered around fitness and gym spaces.
Spring 2022
As there are many fitness centers and gyms across the nation, Trackside Gym stands out as the finest. Located in the young and growing city of Chamblee, Georgia, Trackside Gym is an eight-story fitness center, office building, and common public area for the community. The fitness centers are spread throughout the building on levels G, 3, 4, 5, and 6. These areas focus on a variety of exercises such as cardio endurance, muscular endurance, muscular strength, flexibility, body composition, speed, and overall physical intelligence. The main attraction at Trackside Gym is the track. Situated on the ground floor, the track extends inside and outside the building, connecting to the popular outdoor trail on the site. Levels 5 and 6 offer additional outdoor areas on the rooftops. The building houses four office spaces for businesses, located on levels 1, 2, 3, and 4. To integrate the private office spaces with the public fitness centers, there are four health-related restaurants and retail spaces on the first and second levels.
Trackside Gym








































Front Exterior View
Rear Drone View
Interior Track
Interior Stairway
Interior Common Area
Site Plan
Sectional Perspective
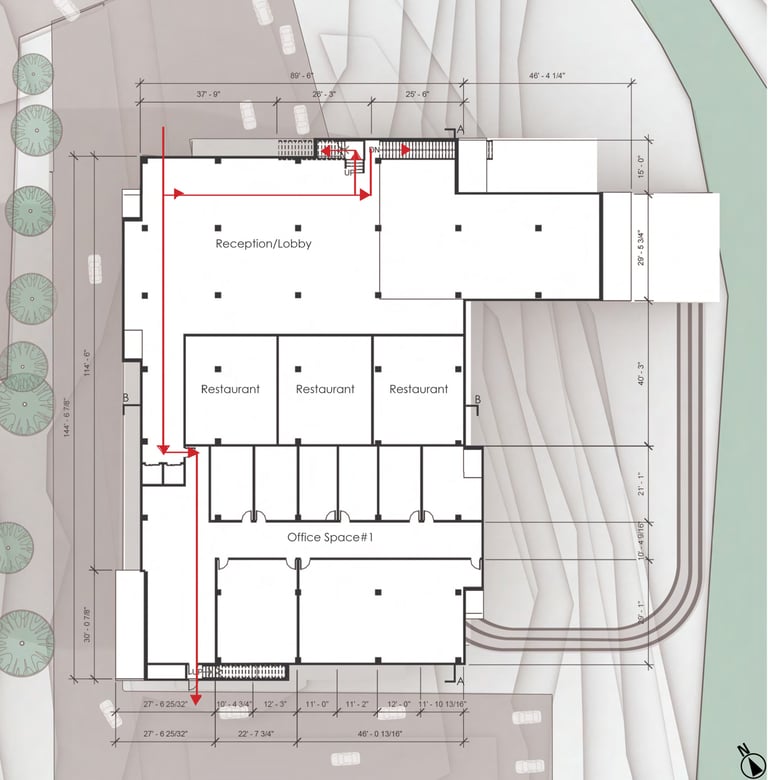
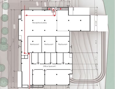
Ground Level Plan
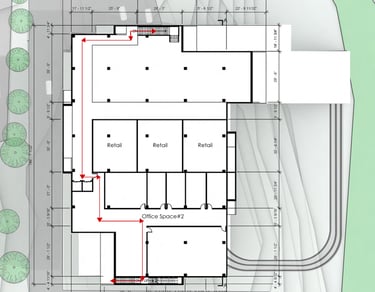
First Level Plan
Fourth Level Plan
Fifth Level Plan
East Elevation
North Elevation
Section A-A
Massing Model Process
Facade Emphasis
Window Emphasis
Circulation
Track
Model Images
Concluding the design of the simple temple, White delved into his mixed-use office building for his final project. Through his research and exploration of Chamblee, Georgia, where the site is located, he identified a need to propose a design that provided local gyms and fitness centers with office space. This building would intend to have office space and usable gym space across multiple floors, as well as a retail/restaurant area that specifically focuses on health-related items. This midterm work is showcased to represent White's design considerations during the midterm of Studio VI that led him to his final product.
Chamblee Fitness Center-Midterm Work












Site Plan


Front Exterior View
Section A-A
Section B-B
Second Level Plan
First Level Plan
Ground Level Plan
Exploring with his final rhythm model in a vertical fashion, White was able to develop a “simple temple” on the site. With unique opportunities with topography, he created a building from his rhythm design that introduces staking methods and slopes to create a small structure. In the end, White created something people could circulate and explored but also think about the structure in a way that could inform an office building design for the final project.
Simple Temple










Site Plan
Section A-A
Circulation
Aerial View
Exterior Front View
Exploring rhythm was the introduction to Studio VI. White explored rhythm and defined it within a design of modules that had unique polygonal surfaces. From there, within a 3”x8”x3” boundary, he recreated the design and worked with two of his colleagues to connect their design to his. This connection allowed White to not only represent his design but also to flow into someone else's, and so on with the rest of the studio. At the end of his rhythm design project, he and his studio were able to make a series of interpretations of what rhythm is in design and create one large piece.
After studying rhythm and collaborating with others to create a unique design, White and his studio visited the site for the final project of the semester. For the beginning stages, White envisioned his rhythm design from a horizontal perspective to now a vertical perspective that could potentially become a tall structure, such as a simple temple, that someone can occupy and explore.
Rhythm to Reality












Original Rhythm Design
Final Rhythm Model
Class Rhythm Connections
Class Rhythm Connections
Rhythm Model Explored Vertically for Simple Temple


