Studio VIII (Urban Studio)
Studio VIII, known as Urban Studio, introduces students to urban design to develop an understanding of contexts larger than a single building and its immediate surroundings. This studio marks a shift in the architect's response and design process, emphasizing the responsibility of designers not just to their clients, but to the broader population—past, present, and future—who are stakeholders in our collective built environment. As such, our efforts are seen as creating the physical infrastructure of collective life, accommodating the needs of a diverse population. This task underscores the complexity of urban design projects, which must consider the social, political, economic, and physical structures and systems of a specific site, including its immediate environment and the city in which it is located. The goal of this studio is to create spaces that are just, livable, inspiring, meaningful, beautiful, and inclusive.
White engaged deeply in this studio by forming a team to develop an urban proposal for the city of Brookhaven, Georgia. Through a series of precedent research, site analysis, initial proposals, and final proposals, White and his team devised a complex plan focused on transportation, recreational activities, and events, aiming to foster a strong sense of community. This project will feature a competition held by Kennesaw State University's College of Architecture and Construction Management. In the end, there will be one prize given out to the team, issued by Sizemore Group.
Spring 2023
White and his group, comprising Moises Marquez and Alejandro Rodriguez, were awarded first place in the Urban Design Competition for their project, 'MODI STATION'. This competition, focusing on the Brookhaven Transit Oriented Development, was held at Kennesaw State University.
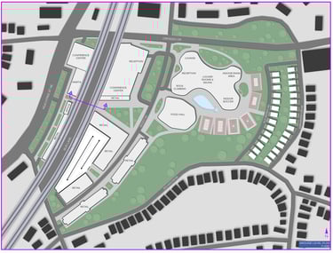
MODI STATION-1st Place Win








Located in the heart of Brookhaven, Georgia is Modi Station. Modi Station is a new and improved transit-oriented development that brings the community together through transportation, recreational activities, and events. Transportation supported on the site is the MARTA system, buses, vehicles, bicycles, and pedestrian movement. The main goal for this project is to bring the needs of lively transit-oriented development to Brookhaven but also add a recreational facility. Currently in Brookhaven, there is not a place to go to essentially have fun or be active without having to drive closer to Atlanta. So, adding a space where sports, exercise, and outdoor activities are promoted is essential for the community. Additional public spaces on the site, is a main station, a conference center, a hotel, retail spaces, a food hall, bike hubs, and a renovated version of the preexisting Fernwood Park. Private spaces offered on the site are office spaces, apartments, and a series of single-family homes. Furthermore, the site offers many gathering spaces and plazas to encourage interaction and community.
MODI STATION


By Moises Marquez, Alejandro Rodriguez, & Austin White












































Studying the site in Brookhaven, Georgia was the initial analysis done in Studio VIII. Here initial site analysis and initial master planning occurred to prepare the final design proposal.
Brookhaven Master Planning-Midterm Work












