Studio III
Studio III is the third design studio that builds on the design thinking skills developed during the first-year studios. This course initiates the application of research on site, context, and case studies in the design process and emphasizes the development of design concepts. Projects begin with the design of interior and exterior conditions, site design, and the architectural design of structural systems.
As White begins the second year of his undergraduate journey, he takes on three projects within Studio III. The first is a pavilion structure to study light and shadows to make unique opportunities for students to occupy on campus. The second involves selecting a precedent to study and develop. The third project entails taking the selected precedent and designing a house, keeping in mind the original architect's mindset.
Fall 2020


Courtyard Retreat
In Studio III, experimenting with light was a key requirement for designing a pavilion structure to be located somewhere on campus. This exercise helped White understand the multifaceted effects of light and shadows on a structure. The project, named 'Courtyard Retreat,' features a light pavilion designed in the shape of a cube. This pavilion incorporates a variety of design elements that explore light conditions at different times of the day.
Courtyard Retreat is situated in an active area near The Market and the Courtyard Apartments on the Marietta campus. This location makes it an ideal spot for students to study or take a break before, between, or after classes. The design was inspired by the architectural elements seen on the facades of the Design I, Design II, and the Engineering Building on campus. These buildings display a series of cubes and rectangular window shapes, as well as columns that create varying shadow patterns on surfaces.




















Site Plan
Rear Exterior View
Front Exterior View
First Floor Interior View
Second Floor Interior View
Front Elevation
Right Elevation
Left Elevation
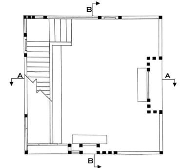
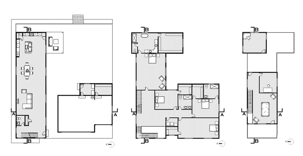
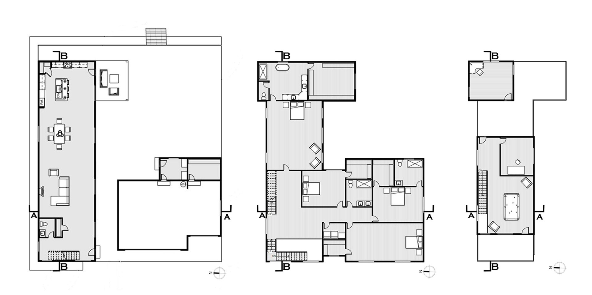
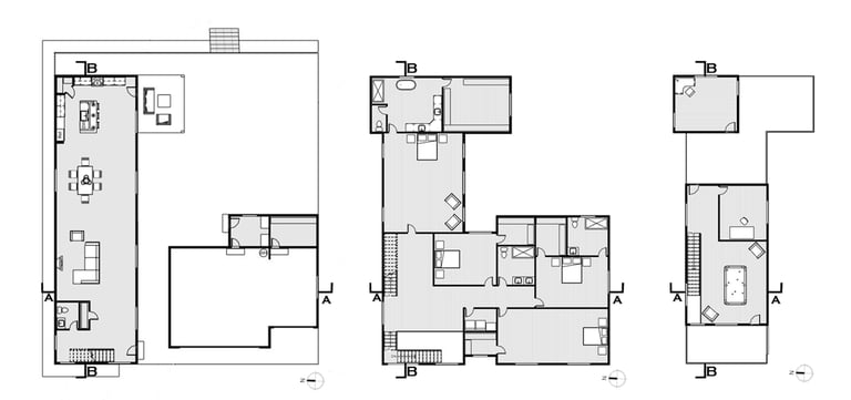
First Floor Plan
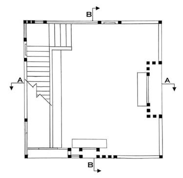
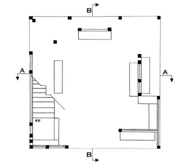
Section A-A
Section B-B
Model Images




Second Floor Plan






Moriyama House
The Moriyama House, located in Tokyo, Japan, is a distinctive project comprising a series of ten individual buildings that collectively define the spatial experiences of the house. This innovative design was created by the architecture firm SANAA (Sejima and Nishizawa and Associates), founded in 1995 by architects Kazuyo Sejima and Ryue Nishizawa. The Moriyama House, completed in 2005, aimed to blend indoor and outdoor experiences, challenging traditional notions of private and public spaces.
Spanning four floors, the Moriyama House's design, with its ten separate buildings, offers flexibility in the allocation of residential spaces. Two of these buildings feature accessible rooftops, reached via stairs. Despite each building being a distinct space, the overall design maintains a hierarchy and an open concept among the structures. This layout effectively blurs the lines between what is traditionally perceived as private property.




























Front Exterior View
Site Plan
Section A-A
Left Elevation
Front Elevation
Basement Floor Plan
First Floor Plan
Second Floor Plan
Third Floor Plan
Massing & Natural Light
Parti
Hierarchy
Circulation


Final Axonometric View
Final Exploded Axonometric View
Model Images


Massing
Geometry By Floor

















After studying and producing drawings of the Moriyama House, the task was to design a residential house influenced by SANAA’s architectural techniques. The chosen site for this project is located at 1143 Terrell Mill Road, Marietta, GA 30067. It's a 0.46-acre lot nestled in a friendly neighborhood. Conveniently, the site is within walking distance of a local grocery store, drug store, urgent care, and other retail stores. It falls within the Cobb County district, serviced by Brumby Elementary, East Cobb Middle, and Wheeler High Schools. The site is bordered by two neighbors and an open lot ready for construction. While most of the noise originates from traffic on Terrell Mill Rd, the site remains relatively quiet, surrounded by trees.
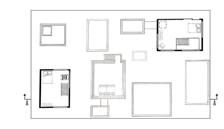
Before delving into the design specifics, space adjacency diagrams were used to list the required and desired spaces in the house. These diagrams illustrate the relationships between spaces, indicating whether adjacency is crucial or unnecessary, and classify each space as either public or private within the house.
Named 'Zoyama House', this open-concept home is inspired by SANAA’s previous projects. It features four bedrooms, four baths, a home office, studio space, a media room, a three-car garage, third-level balconies, and an open courtyard. The design centers around an open exterior courtyard, fostering an indoor/outdoor experience. Additionally, the house includes an open exterior hallway that leads to the backyard, allowing guests to access the courtyard/backyard area without entering the house.
Zoyama House
























Rear Exterior View
Front Exterior View
Kitchen
Media Room
Living Room
Site Plan
Site Analysis
First Floor Plan
Second Floor Plan
Third Floor Plan
Section A-A
Section B-B
North Elevation
West Elevation
East Elevation
South Elevation
Sectional Perspective
Parti
Hierarchy
Circulation
Symmetry & Balance
Natural Light
Plan to Section
Massing
Massing Iteration 1
Massing Iteration 2
Massing Iteration 3
Program by Floor
Final Massing Iteration
Final Axonometric
Exploded Axonometric
Matrix Diagram
Adjacency Diagram
Zoning Diagram
Model Images


