Studio VII (Integrative Studio)
Studio VII, also known as Integration Studio, focuses on building structural and performance systems integration in relation to an architectural concept. Students will engage in a program that studies the impact of site and programmatic forces, aligning with integrative design principles as outlined by NAAB. This course builds upon and emphasizes the synthesis of knowledge and skills acquired in concurrent and prior coursework, demonstrating individual student capabilities. Throughout the semester, students will develop a mixed-use residential complex, integrating architectural aspects they have gained across their academic coursework.
White delved into Studio VII by developing a mixed-use studio apartment complex that integrates a flea market or flex space to hold events and promote community. Within this project, he incorporated shading devices, structural considerations, structural analysis, green roof additions, HVAC circulation and connections, façade materiality, and more. In the end, White’s project featured a series of twelve individual buildings that were a place for both the public and the private residences.
Fall 2022
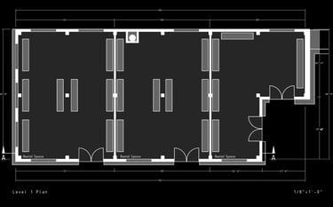
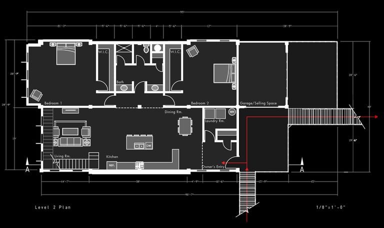
As there are a variety of different types of living spaces in Atlanta, The Weekend is unlike any other. Located at 264 Memorial Drive SE, Atlanta, GA 30312, this upcoming project promotes community engagement. Activity at The Weekend primarily occurs on weekends, making it a bustling place with events like flea markets, farmers markets, and reserved gatherings. The development features twelve individual units, comprising rental spaces and residential areas. The ground floor houses a hidden parking garage, accessible by three fire escape stairs. The first level offers forty rentable spaces for public sales. Two main staircases provide street access to this vibrant area. On the residential side, there are four different units. These designs are replicated three times across the site, each with unique facades. Targeting creative individuals who desire ample space, the units offer lofts, rooftop terraces, and greenhouses. Additionally, each residential unit includes a garage/selling space on the second level, allowing tenants to engage with the public and sell their creative works or belongings during the weekends. Public access to these garage spaces is via the three fire escape stairs and a network of sky bridges throughout the site.
The Weekend Complex






















Unit 1 at the Weekend Complex is a distinctive unit that appears three times throughout the site. Each of the three units features a different façade, yet all include one small rental space, one large rental space, and public men's and women's bathrooms on the first level. The residential section of the unit comprises two bedrooms, two bathrooms, a laundry room, a kitchen, a living room, two loft areas, two rooftop terraces, and a garage/selling space for the tenant. The unit is more narrow but long, with an open staircase extending from the second to the fourth level. This unit, spacious and ideally suited for creative individuals who require a lot of space, offers ample room.
Unit 1


















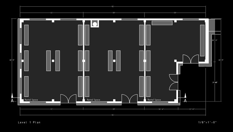
Unit 2 at the Weekend Complex is a unique unit that appears three times throughout the site. Each of these three units has a different façade but shares a common feature: three small rental spaces on the first level. The residential part of the unit includes one bedroom, one half bathroom, one master bathroom, a living room, a kitchen, a laundry room, two rooftop terraces, a green room, and a garage/selling space for the tenant. Although this unit is the smallest among the available units, it is ideal for a couple interested in plant care and requiring ample space.
Unit 2


















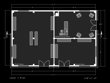
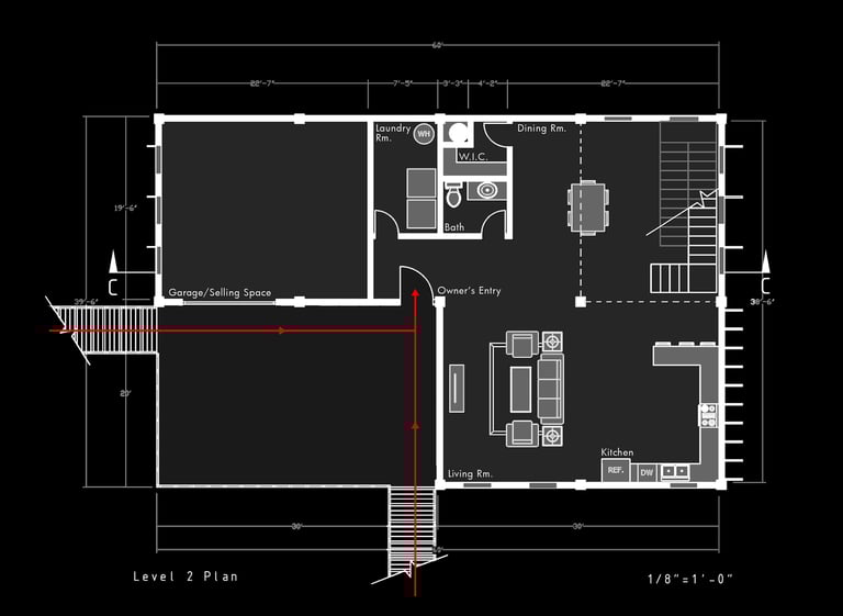
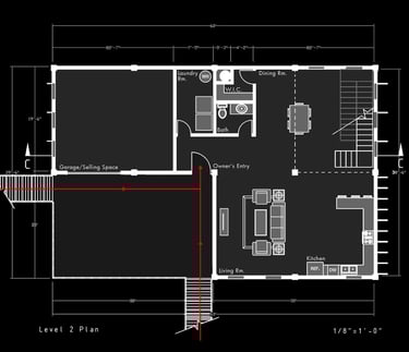
Unit 3 at the Weekend Complex is a distinct unit that appears three times throughout the site. Each of these three units features a different façade and includes both a small and a large rental space. The unit located at the beginning of the site also houses the leasing/rental office. On the residential side, the unit comprises two bedrooms, a half bathroom, a full bathroom, a laundry room, a kitchen, a living room, a large loft space, one rooftop terrace, and a garage/selling space for the tenant. This large unit boasts a very open staircase extending from the second level to the fourth level. With its ample space, it is ideally suited for a creative person who needs a lot of room.
Unit 3


















Unit 4 at the Weekend Complex is a distinctive unit that appears three times throughout the site. Although each of these three units features a different façade, all of them include three large rental spaces on the first level. The residential part of the unit consists of three bedrooms, two bathrooms, a living room, a kitchen, a laundry room, two rooftop terraces, a loft, and a garage/selling space for the tenant. This unit is very open, offering a two-story atmosphere, making it an ideal space for a creative person in need of ample room.
Unit 4


















The models created for White's final proposal, The Weekend Complex, included a site model at a scale of 1/32”, which displayed the massings of the twelve individual buildings. There was also a scaled structural model of one of the buildings in Unit 4 at 1’=1-1/2”, along with several additional analysis models.
Model & Review Photos










Inspired by the world's most beloved franchise, this site analysis focuses on 264 Memorial Drive SE, Atlanta, GA 30312, for the semester project. The analysis includes a comprehensive study of various aspects such as the surrounding context near the site, noise levels, school districts, parking availability, zoning requirements, temperature variations, and wind patterns. All these factors are thoroughly examined to prepare for the development of the site.
Site Analysis




