Structures I is an introductory course in architectural structures, emphasizing statics and the concepts of material strength. The learning objectives for this course are to introduce force systems, reactions, force system analysis, stresses, and beam shear and moment diagrams, as well as columns. The course concludes with the design of a pavilion to be situated on campus, applying the knowledge acquired throughout the Structures I.
Structures I
Spring 2021






Amphi-shell
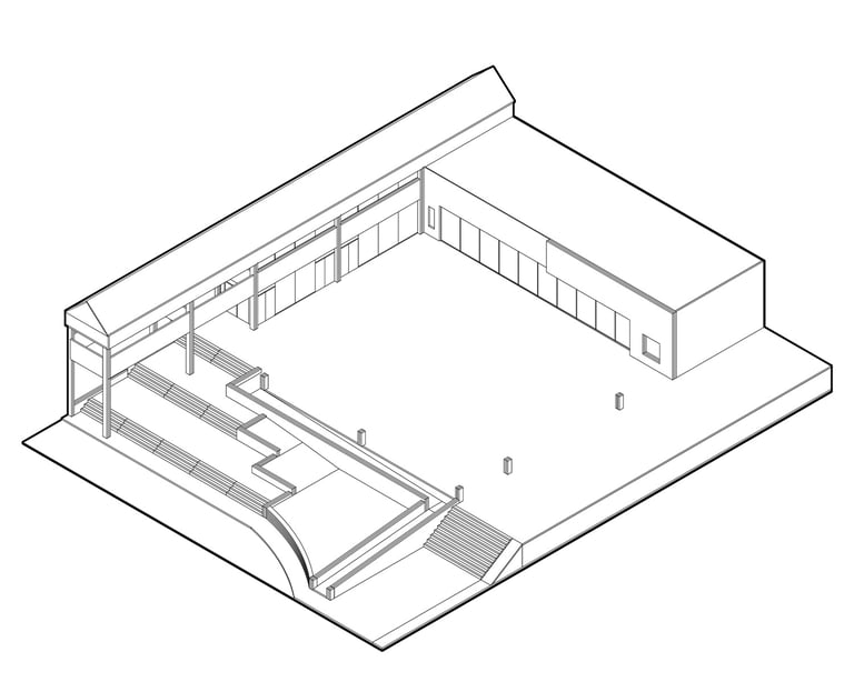
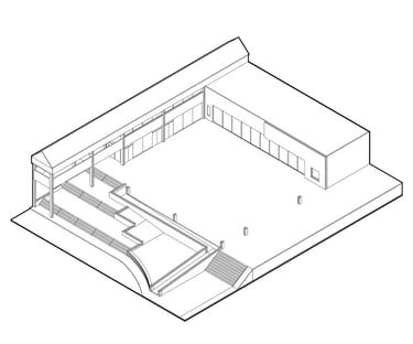
At the Textile Building's outdoor common area on Marietta Campus is Amphi-shell, a pavilion inspired by Roman amphitheaters. It is designed to encompass all who use it, serving as a versatile space for gatherings or for students to work between classes. The shaded area is suitable for everyone. Its shell-shaped design creates a grand entrance that welcomes all who approach it. Using materials of concrete for the fins of the design and steel pipes to hold the structure in place, analysis of this structure was done through an LVM diagram (Load, Shear, and Movement). Showcasing knowledge of potentially how one of these concrete fins would hold up connected to the building and the steel pipes.


Front Exterior View
Site Plan
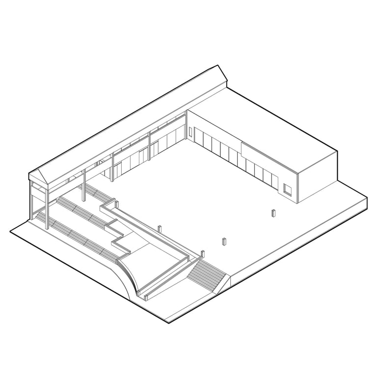
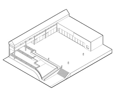
Axonometric View of Existing Building
Axonometric View with Pavilion Addition




Model Images


LVM Diagram


